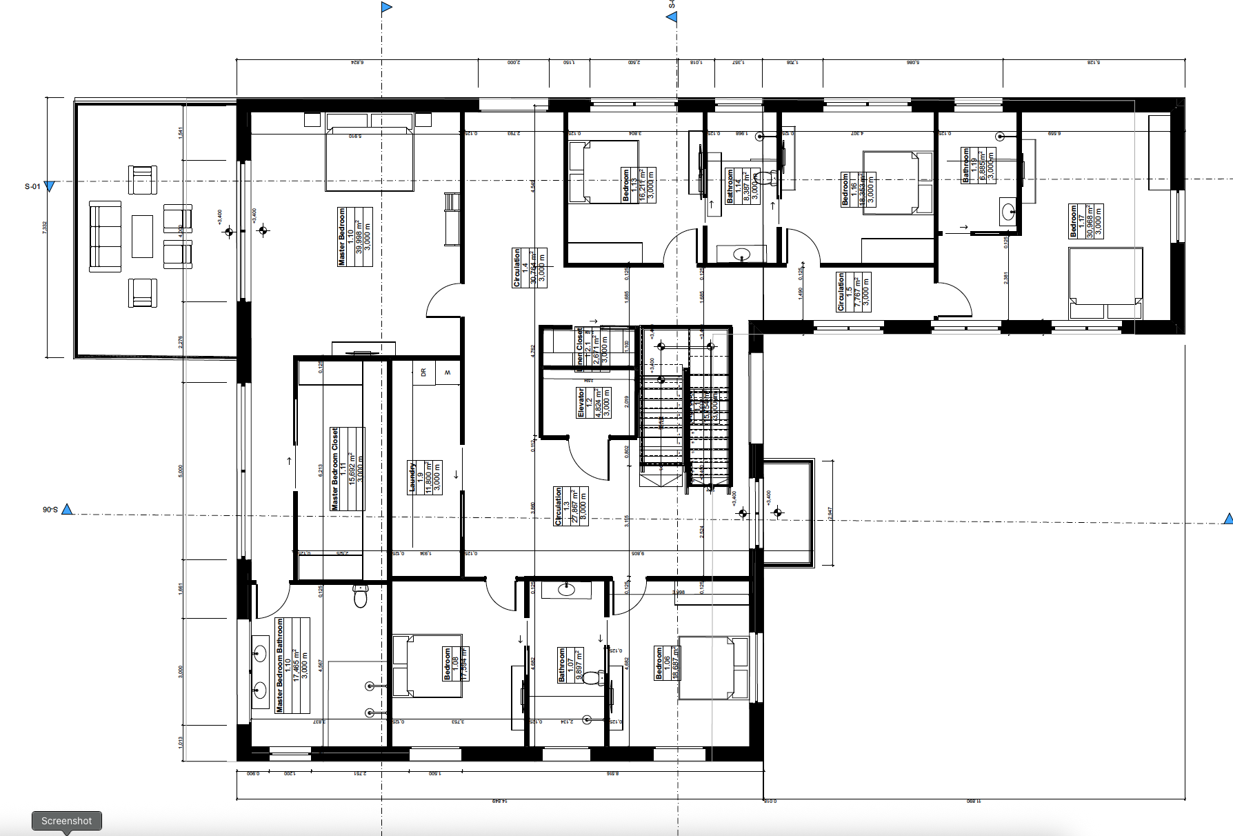
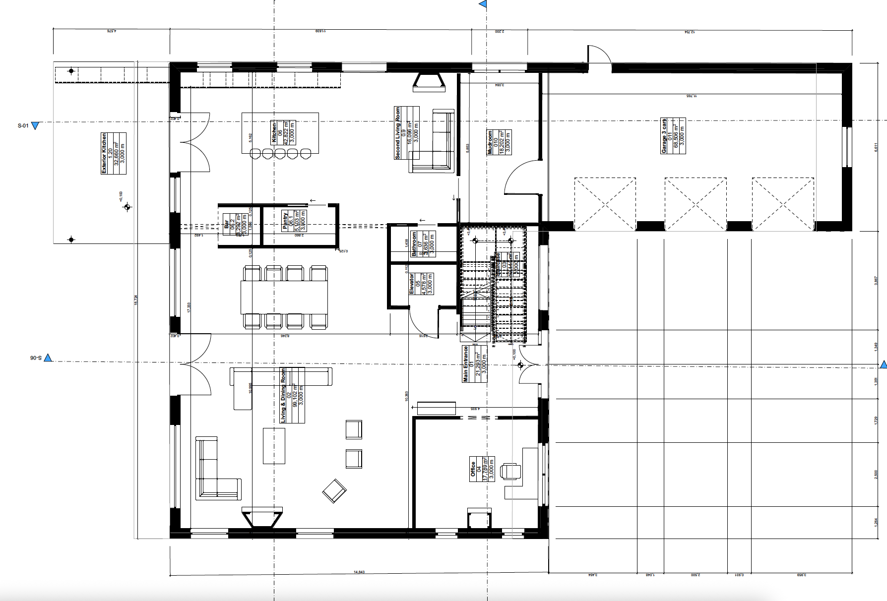
A large family home with 5 bedrooms overlooking Lake Ontario. A classic style was requested by the clients, so one of the main challenges was to combine a classic chateau style approach with a modern twist. The result was a house that uses plaster, white stone, wood & black aluminum windows to create a distinct look.
A site restriction due to flood season obligated a fixed position of the front. The south facade, overlooking the lake, has a large sun balcony on the first floor, as well as an outdoor dining & cooking area on the ground floor; a heated pool was also proposed in order to take advantage even during wintertime. Roof pitch was thought to both withstand winter & heavy snow downfall, as well as allow for the placement of solar panels for energy gains.
Location: Lake Ontario, Ontario, Canada (Niagara on the lake)
Client: Catherine & Georgio Kosmidis
Role: Lead Architect; 3D visualization
Engineering: Stephen MacDougall, Brown & Beattie Ltd.
Tools used: Archicad, Twinmotion
Engineering: Stephen MacDougall, Brown & Beattie Ltd.
Tools used: Archicad, Twinmotion